Nabídka
Genesis 65
Novinka
- tříkomorový okenní systém se zvýšenou tepelnou izolací
- tepelné parametry okna Genesis 65 splňují požadavky platné od roku 2021 (Uw od 0,90)
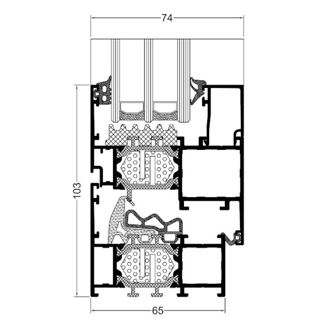
- základem systému Genesis 65 jsou profily rámů o stavební hloubce 65 mm
- široká škála profilů nabízených v rámci systému Genesis 65 umožňuje navrhovat moderní okna, okenní výkladce, otevíravá a otevíravě-sklopná okna, která se vyznačují vysokou funkčností a estetikou
- v systému Genesis 65 byly použity moderní izolační materiály: kromě klasického centrálního okenního těsnění zajišťujícího vysokou těsnost průnikvzduchu, vodotěsnost) bylo navrženo další tepelné těsnění, které zvyšuje tepelnou izolaci oken
- v systému je možné zvolit různé povrchové úpravy profilů (včetně renovačních profilů), které dodávají konstrukci okna individuální charakter
- systém také umožňuje vytvoření celoskleněného rohového spojení v úhlu 90 stupňů
- okenní systém Genesis 65 stanovuje nový standard izolačních vlastností oken při zachování nejvyšší ergonomie a moderní estetiky profilů
- k dispozici je systém OUT – okna otevíraná ven
- k dispozici je systém SU – skryté křídlo
- Genesis 65 je systém určený k navrhování okenních konstrukcí jak ve veřejných budovách, tak v jedno nebo vícegeneračních domech
- systém je možné kombinovat se systémy Flyscreen, Insect System, Insect Screen (systémy proti hmyzu)
- široký výběr barev – paleta RAL (Qualicoat 1518), strukturální barvy, Aliplast Wood Colour Effect – barvy imitující dřevo Aliplast Loft View – barvy imitující kamenné povrchy (Qualideco PL-0001), elox (Qualanod 1808), bikolor
SPECIFIKACE VÝROBKU
| systém | materiál | hloubka rámu | hloubka křídla | tloušťka zasklení | typ oken |
| GR 65 | hliník / polyamid | 65 mm | 74 mm | fix od 4 mm do 49 mm, okno od 4 mm do 55 mm |
FIX, O, S, OS |
TECHNICKÉ ÚDAJE
| systém | GENESIS 65 i+ | GENESIS 65 i | GENESIS 65 |
| SOUČINITEL PROSTUPU TEPLA Uf* | Uf od 0,99 W/m2K | Uf od 1,47 W/m2K | Uf od 1,703 W/m2K |
*Tepelná izolace je závislá na použitých profilacích a použitém zasklení.
